Chuao. Caracas – Venezuela
Reconstrucción – Proyecto y Supervisión
2024

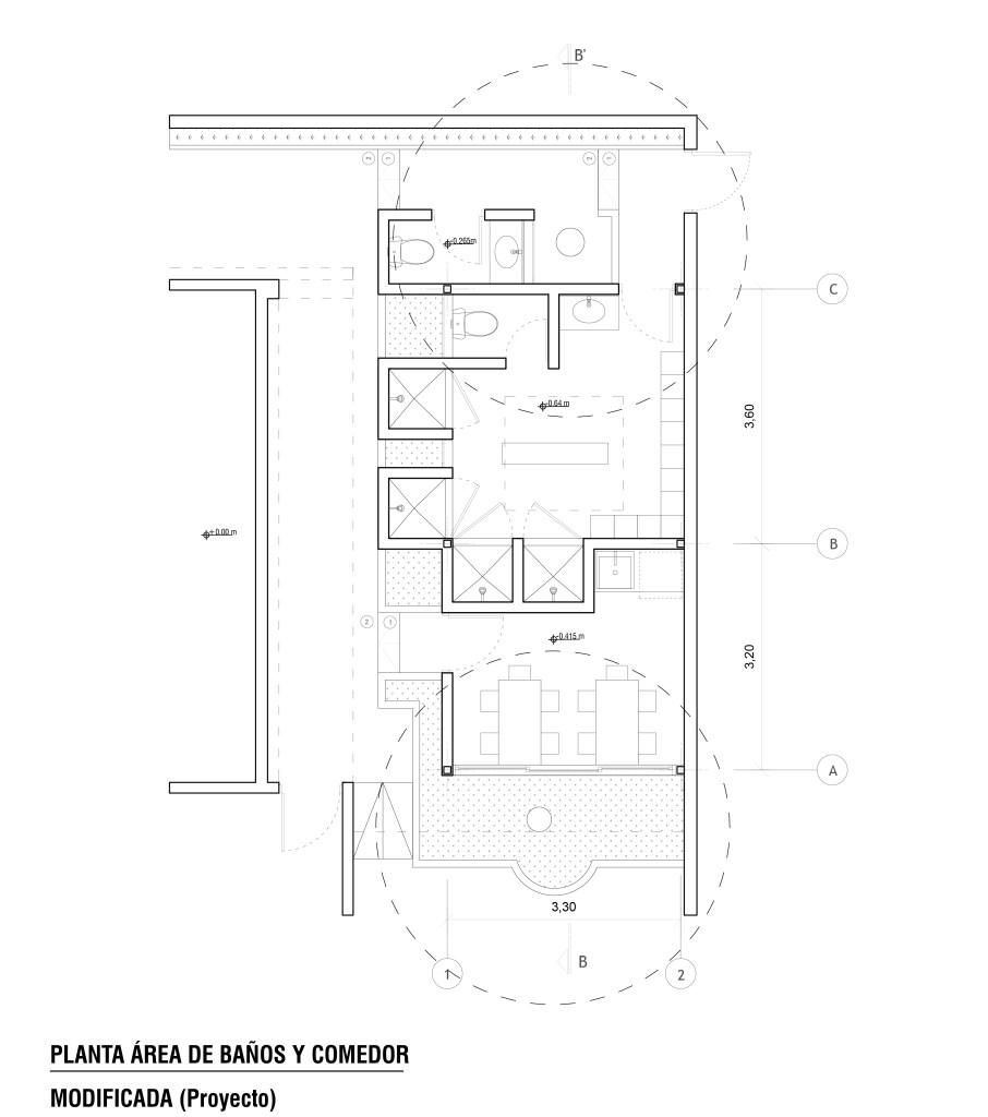
Los espacios dentro del área de baño destinada para las puericultoras de este preescolar resultaban insuficientes y poco prácticos. Posterior a la demolición de la edificación existente se plantea una nueva estructura dotada de cuatro duchas dentro de un espacio común de cambiador, un lavamanos y cuarto para inodoro. Adicionalmente se reconfigura la disposición de un baño externo y un salón-comedor, también para el uso del personal del preescolar.



El nuevo espacio se ilumina y ventila de manera natural a través de una claraboya ubicada en el centro del espacio. Hacia el exterior, los volúmenes generados por los nichos de las duchas definen la nueva fachada de esta edificación, estableciendo una secuencia donde el vacio entre estos volúmenes es ocupado por unas jardineras bajas, marcándose así un ritmo de llenos y vacios que intentan hacer del tránsito por el pasillo que se genera entre esta fachada y la pared que delimita un salón de clases, una experiencia más agradable.

Arquitectura:
Juan Pablo Camacho
Luisella Casanova

