Urbanización Sorocaima, La Trinidad. Caracas – Venezuela
Obra Nueva – Proyecto
2014
Conscientes de la importancia de la educación en el perfil de una nación desarrollada, un grupo de educadores y profesionales del área se han unido para elaborar un proyecto de educación temprana de alta calidad en un ambiente deliberadamente diseñado para lograr los objetivos de formación individual y ciudadana, con la atención pedagógica y seguimiento particular de cada infante, prestando importancia a programas especiales de educación y formación, entre los que destaca la enseñanza del idioma inglés a partir de modernos métodos y tecnologías.

Se propiciará la interactuación de los participantes –infantes, educadores, padres y representantes- en ambientes de aulas y espacios armoniosos concebidos para la integración social, complementados con espacios de uso especializado, dando características resaltantes al edificio.
La proposición arquitectónica intenta resolver los aspectos funcionales propios de una obra para fines educacionales, sin descuidar los aspectos holísticos generados en cada propuesta espacial – funcional, pues el resultado tendrá gran influencia en la percepción de los infantes y en consecuencia en su respuesta ante los objetivos didácticos y de formación.

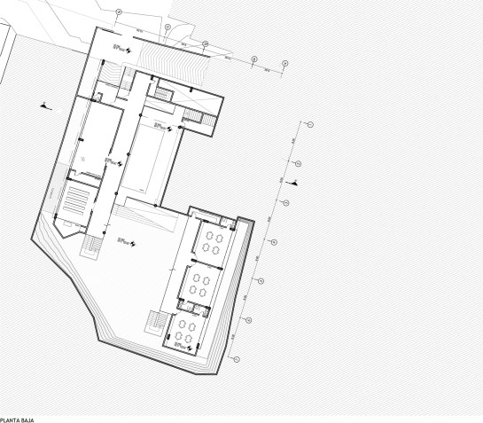
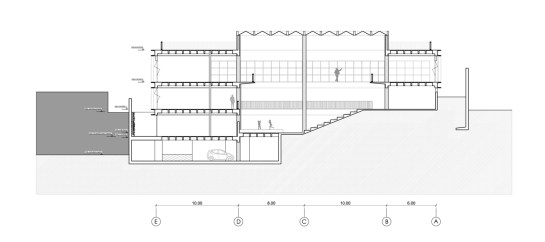
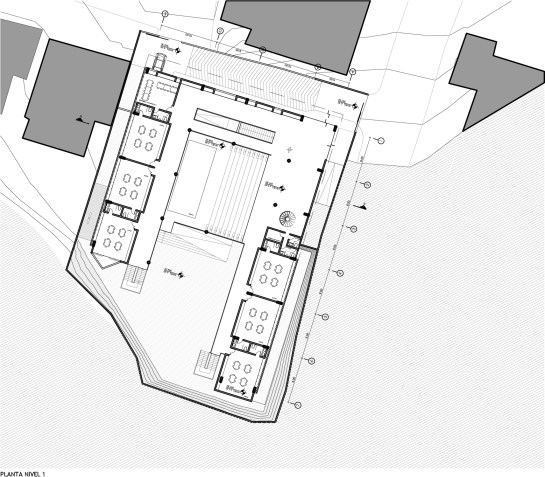
A partir del estudio de la geometría y topografía del terreno, se opta por implantar un edificio en forma de herradura que se abre hacia la ladera al sur de la parcela, que ofrece la única vista liberada, pues los otros lados de la parcela lindan con edificaciones residenciales.
Arquitectura:
Juan Pablo Camacho
Colaborador:
Alvaro Plaza
Asesoría:
Johnny Camacho




