Mampote. Edo Miranda- Venezuela
Adecuación – Proyecto
2011

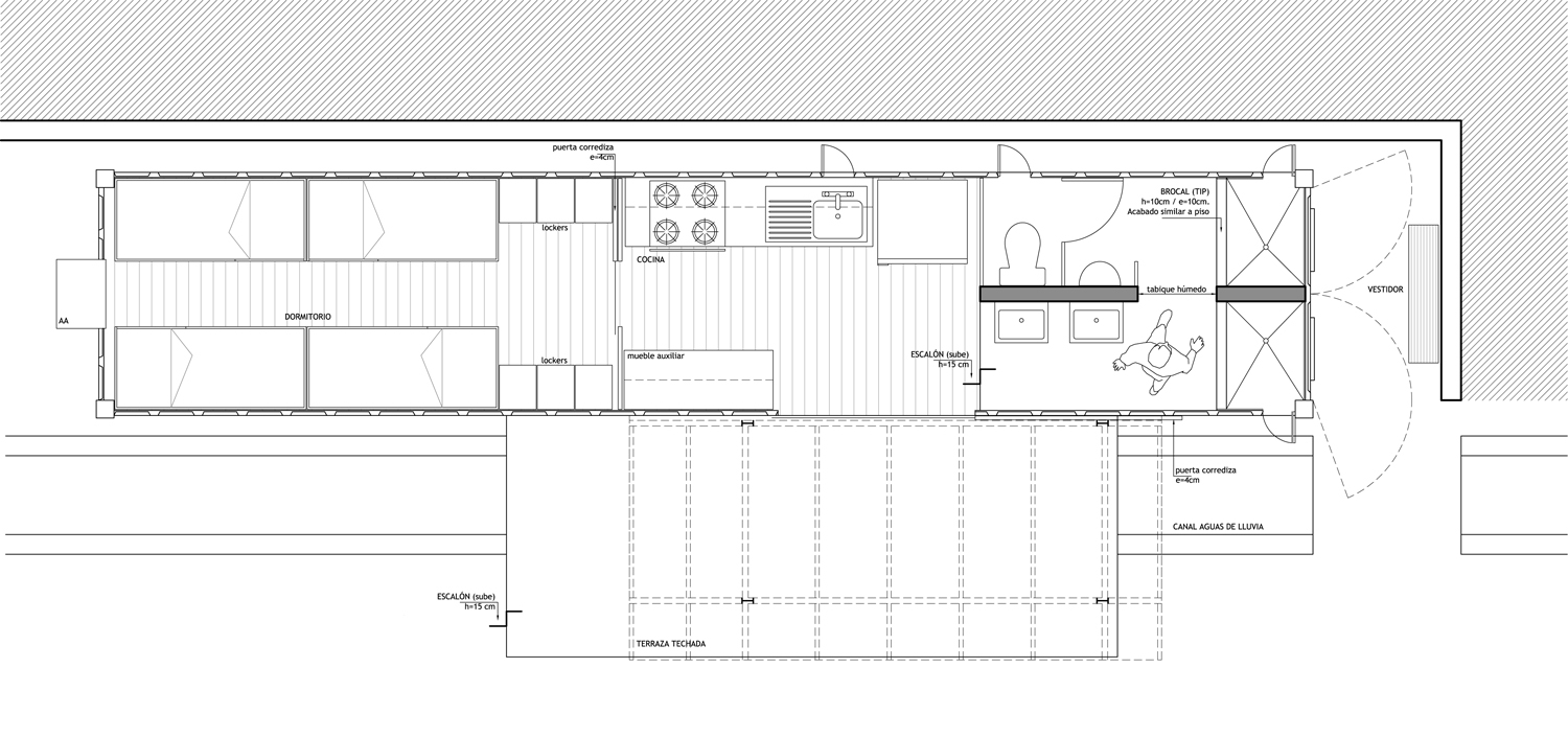
Acondicionamiento y adaptación de contenedor de 40 pies, para uso provisional de personal de trabajo. Considera incorporación de instalaciones eléctricas, sanitarias y mecánicas.


Arquitectura:
Juan Pablo Camacho
Claudia Varela
