
Este apartamento dúplex de 170 mt2 aproximadamente, requiere ser remodelado y adaptado a las necesidades del cliente. Su condición actual define dos niveles claramente diferenciados entre área social en el nivel superior, y dormitorios en el nivel inferior. La propuesta planteada, además de generar algunas modificaciones en la configuración interna de la vivienda, busca activar los espacios exteriores, actualmente desprovistos de programa, uso y mantenimiento.
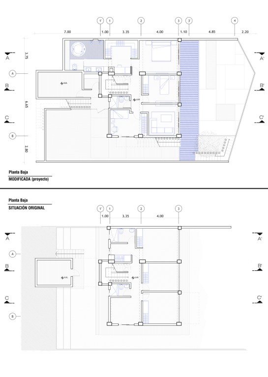
En el nivel superior se plantea, por sugerencia del cliente, vincular el área de cocina, actualmente aislada, al área social de la vivienda; de esta manera, sala, cocina, comedor y balcón, resultan interconectados física y visualmente. Esta modificación, no solo amplia la noción espacial sino que también aporta mayor iluminación y mejor ventilación a esta área. La habitación de servicios pasa a ser el área de lavandería, liberando de esta manera espacio necesario en el área de cocina, para la configuración de los nuevos muebles, artefactos y mesón.
Una escalera exterior adosada a fachada sur, permite una manera alternativa de bajar desde la cocina a las áreas exteriores.


En la planta baja, nivel inferior, se plantea el crecimiento del área de baño y vestier de la habitación principal, con lo cual se alcanzan los niveles de comodidad y confort requeridos por el cliente. Esta modificación conllevará nuevas construcciones, contentivas de muros, losas y cerramientos.
La situación original de este nivel dispone de una habitación principal con baño privado y vestier, dos habitaciones con baño común, y un área común (family room). La propuesta planteada mantiene este programa de áreas, solo que el área común pasa a ser habitación y una de las habitaciones pasa a ser área común. Este cambio permitirá una conexión directa entre el family room y una nueva terraza destechada.
A partir una nueva construcción en el ala este de la propiedad, que considera muros de contención, columnas, losas y escalera, se logra esta terraza destechada, que a su vez será cubierta de un nuevo nivel, semisótano, destinado a sala de juegos.


Actualmente se accede a la propiedad mediante una estructura puente que se conecta al edificio, justamente a la fachada oeste donde se encuentra la entrada principal al apartamento. Este puente también da acceso al apartamento vecino.
La propuesta plantea un acceso alternativo a través de una escalera destechada que acompaña un muro de contención. Este muro de contención a su vez define un jardín en el nivel inferior de la vivienda, en el ala oeste. La escalera también dará acceso a dos depósitos, uno para el cliente, otro para el vecino. Los cerramientos se plantean de tal manera que se garantice la privacidad, independencia y seguridad para cada propietario.
Este jardín ganado a partir de la construcción del muro, también funcionará como área de desahogo y esparcimiento de la vivienda.
La propuesta, pensada como un diseño integral, aspira transformar esta vivienda a partir de espacios más abiertos, fluidos y confortables. Las ampliaciones y transformaciones de las áreas exteriores buscan compensar la falta de área comunes y de esparcimiento que presenta actualmente la vivienda, a la vez de dar uso y vida a espacios que hoy no mantienen ninguna relación ni conexión con las áreas internas de la vivienda.


Arquitectura:
Juan Pablo Camacho
Colaboradores:
Alexandra Nuñez
Fernando Henriquez
Daniele Pignataro
